Sie wünschen einen Rückruf? Wir rufen Sie gerne zurück.

    Wann sind Sie am besten zu erreichen?

    Bitte Tag/e auswählen:
    (Mehrfachnennung möglich)

    MontagDienstagMittwochDonnerstagFreitagzeitlich flexibel

    Bitte Tageszeit/en auswählen:
    (Mehrfachnennung möglich)

    morgensvormittagsmittagsnachmittagsabendszeitlich flexibel

    Worum geht es?


    Immobilie kaufen/verkaufenImmobilie mieten/vermietenAllgemein

    captcha

    Die Silberberg Holding GmbH inkl. weitere zur Unternehmensgruppe gehörende Unternehmen, namentlich die Immobilien Zentrum Vertriebs GmbH und die Immobilien Zentrum Holding AG, nachfolgend unter der Silberberg Holding GmbH zusammengefasst, sichert Ihnen zu, Ihre persönlichen Daten ausschließlich zum Zweck der Bearbeitung Ihrer Anfrage zu nutzen und nicht an Dritte weiterzugeben.


    Zurück

    Kontakt

    Rufen Sie uns an
    0941 60407-0

    Schreiben Sie uns
    info@immobilienzentrum.de

    WG-geeignete Wohnung mit über 4,3% Rendite – 2024 umfassend saniert!

    Die im Jahr 2024 sanierte und gut geschnittene 2-Zimmer-Wohnung befindet sich gemeinsam mit weiteren zehn Parteien im 1. Obergeschoss eines Mehrfamilienhauses in zentrumsnaher Lage im Regensburger Osten.

     Immobilienart

    Wohnung

     Grundstücksgröße

    N/A

     Wohnfläche

    48 m²

     Preis

    219.900 €

     Zimmer

    2

    Beschreibung

    Die im Jahr 2024 sanierte und gut geschnittene 2-Zimmer-Wohnung befindet sich gemeinsam mit weiteren zehn Parteien im 1. Obergeschoss eines Mehrfamilienhauses in zentrumsnaher Lage im Regensburger Osten.

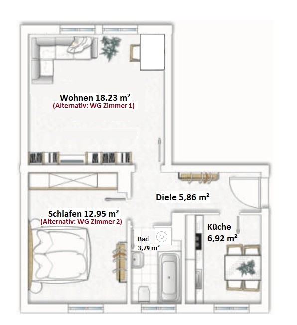
    Bereits beim Betreten der Wohnung fällt die durchdachte Raumaufteilung ins Auge. Direkt links vom Eingangsbereich liegt die moderne Küche mit integriertem Essbereich (6,92 m²), die den Wohnraum optimal nutzt und einen zusätzlichen Essplatz im Wohnzimmer überflüssig macht. Die Küche ist mit einer im Kaufpreis enthaltenen Einbauküche inklusive Ofen, Cerankochfeld und Spülmaschine ausgestattet.
    Von der Diele (5,86 m²) aus erschließen sich alle weiteren Räume. Dank des optimalen Zuschnitts bietet sie zugleich ausreichend Platz für eine Garderobe.
    Das 2024 modernisierte Tageslichtbad (3,79 m²) mit Duschbadewanne und Waschmaschinenanschluss strahlt durch neue Sanitärgegenstände sowie neue Fliesen in einem neuen Glanz. Im Zuge der Renovierung wurden außerdem die Wasserleitungen im Bad bis zum Hauptstrang erneuert.
    Das angrenzende großzügige Schlafzimmer (12,95 m²) bietet Platz für ein großes Doppelbett und einen geräumigen Kleiderschrank.
    Der helle Wohnbereich (18,23 m²) bietet aufgrund seiner optimalen Raumgröße genügend Platz für eine große Wohnlandschaft, ein langes Sideboard für den Fernseher und einen Homeoffice-Bereich.

    Der Grundriss mit zwei getrennten Räumen macht die Wohnung besonders renditestark: Die Eignung für eine 2er-WG eröffnet ein zusätzliches attraktives Steigerungspotenzial zu den aktuellen Mieteinnahmen und ist ein wesentlicher Punkt für renditeorientierte Investoren.

    Die Wohnung wurde Mitte 2024 vollständig renoviert und präsentiert sich heute in einem modernen, sehr gepflegten Zustand. Im Rahmen der Sanierung wurden die komplette Elektrik erneuert, sämtliche Wände gespachtelt, verputzt und gestrichen, alle Türen samt Zargen ausgetauscht sowie Heizkörper teilweise ersetzt oder optisch überarbeitet. Ein hochwertiger Laminatboden, neu verlegt in allen Räumen außer dem Bad (neue Fliesen), runden den zeitgemäßen Gesamteindruck ab.

    Zur Wohnung gehört im Keller ein geräumiges Kellerabteil mit separatem Stromanschluss sowie ein gemeinschaftlich genutzter Fahrradkeller.

    Das Mehrfamilienhaus befindet sich in einem fortlaufend modernisierten und sehr gepflegten Gesamtzustand. Bereits 2004 wurde die Außenfassade mit einem neuen Wärmedämmverbundsystem energetisch aufgewertet. Im Jahr 2018 erfolgte zudem die vollständige Erneuerung des Dachs im Zuge eines Ausbaus, bei dem zwei zusätzliche Wohnungen geschaffen wurden.

    Die Wohnung ist aktuell zu den unten genannten Konditionen teilmöbliert vermietet. Zu den im Kaufpreis enthaltenen Möbeln zählen neben der Einbauküche ebenfalls ein Esstisch, ein Schuhschrank, ein Doppelbett inklusive Lattenrost, ein Kleiderschrank, ein Sideboard, die Vorhangstangen und vieles mehr. Eine detaillierte Möblierungsliste liegt vor und ist im Mietvertrag verankert.
    Dank des vereinbarten Staffelmietvertrags (jährliche Erhöhung der Nettokaltmiete um 50 EUR) ist das Investment zusätzlich gut planbar und sehr rentabel.