Sie wünschen einen Rückruf? Wir rufen Sie gerne zurück.

    Wann sind Sie am besten zu erreichen?

    Bitte Tag/e auswählen:
    (Mehrfachnennung möglich)

    MontagDienstagMittwochDonnerstagFreitagzeitlich flexibel

    Bitte Tageszeit/en auswählen:
    (Mehrfachnennung möglich)

    morgensvormittagsmittagsnachmittagsabendszeitlich flexibel

    Worum geht es?


    Immobilie kaufen/verkaufenImmobilie mieten/vermietenAllgemein

    captcha

    Die Silberberg Holding GmbH inkl. weitere zur Unternehmensgruppe gehörende Unternehmen, namentlich die Immobilien Zentrum Vertriebs GmbH und die Immobilien Zentrum Holding AG, nachfolgend unter der Silberberg Holding GmbH zusammengefasst, sichert Ihnen zu, Ihre persönlichen Daten ausschließlich zum Zweck der Bearbeitung Ihrer Anfrage zu nutzen und nicht an Dritte weiterzugeben.


    Zurück

    Kontakt

    Rufen Sie uns an
    0941 60407-0

    Schreiben Sie uns
    info@immobilienzentrum.de

    Bestlage am Stadtplatz von Dingolfing

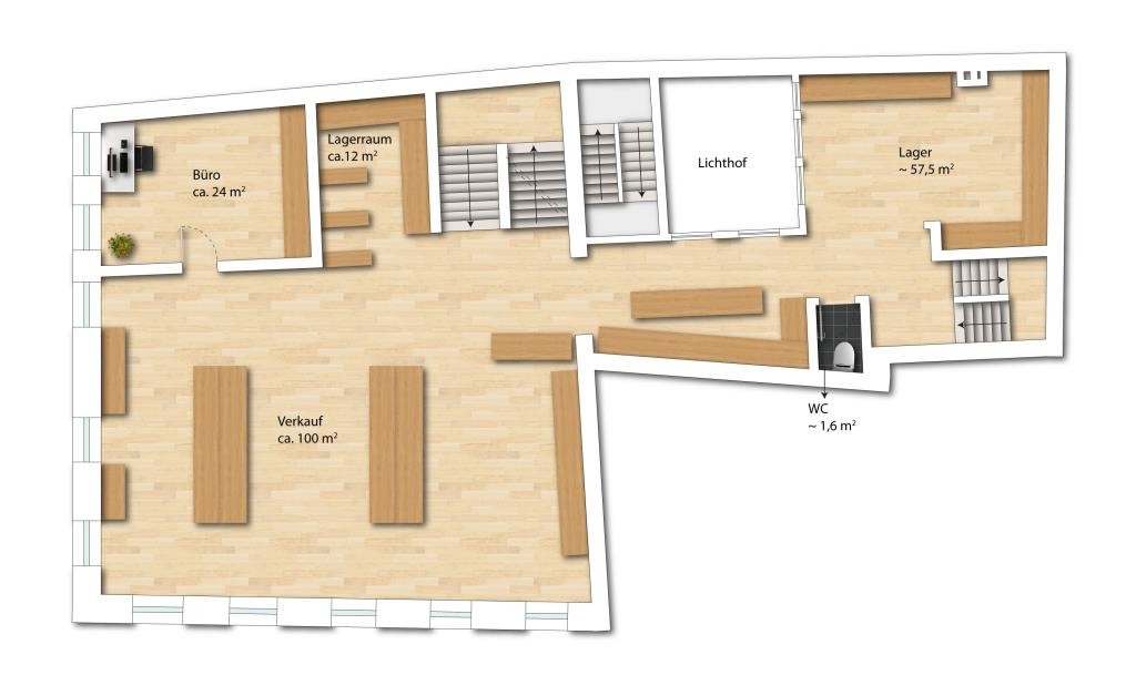
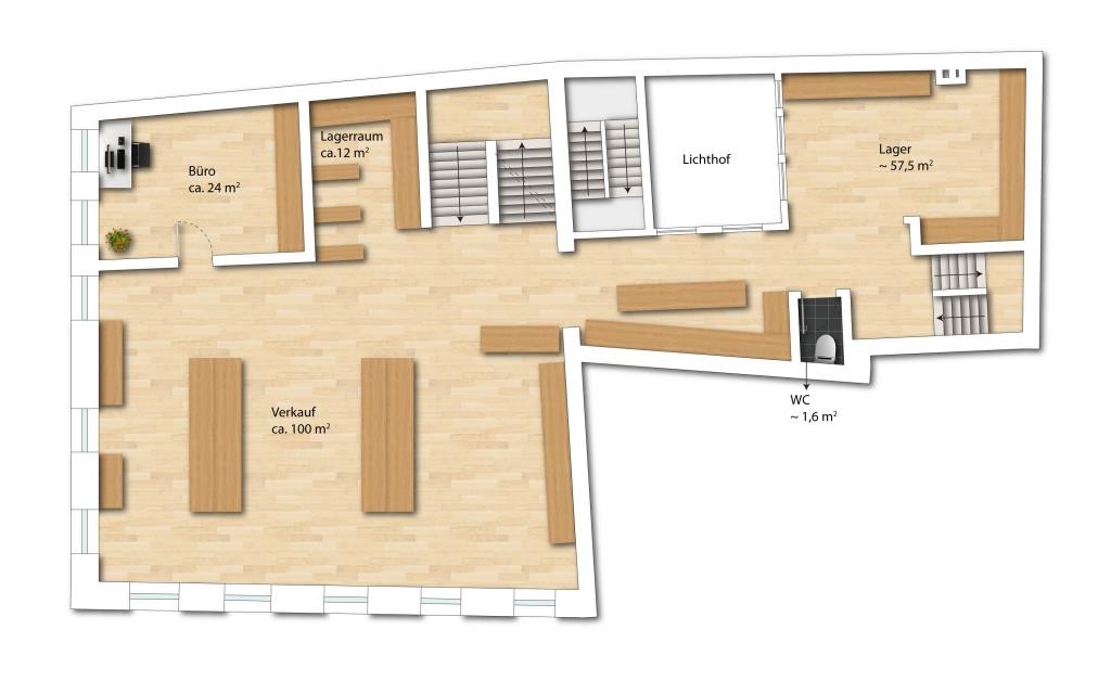
    Das Wohn-/Geschäftshaus liegt in 1A Lage in der Bruckstraße als Erweiterung des zentralen Marienplatzes, dem Hauptplatz der Dingolfinger Altstadt. Das Gebäude fügt sich dank seines Ursprungsbaujahres 1839 dem historischen Stadtbild ideal ein und präsentiert sich dabei als modernisierter Altbau. Mit einer großzügigen Geschäftseinheit über zwei Etagen im EG und 1.OG mit ca. 378 m², einer zusätzlichen Lagerfläche von ca. 178 m² sowie einer Wohneinheit im 2.OG mit ca. 124 m² bietet das Haus einen ideal Mix aus Gewerbe und Wohnen.

     Grundstücksgröße

    262 m²

     Wohn-, Nutzfläche

    505 m²

     Preis

    699.900 €

     Zimmer

    4.5

    Beschreibung

    Das Wohn-/Geschäftshaus liegt in 1A Lage in der Bruckstraße als Erweiterung des zentralen Marienplatzes, dem Hauptplatz der Dingolfinger Altstadt. Das Gebäude fügt sich dank seines Ursprungsbaujahres 1839 dem historischen Stadtbild ideal ein und präsentiert sich dabei als modernisierter Altbau. Mit einer großzügigen Geschäftseinheit über zwei Etagen im EG und 1.OG mit ca. 378 m², einer zusätzlichen Lagerfläche von ca. 178 m² sowie einer Wohneinheit im 2.OG mit ca. 124 m² bietet das Haus einen ideal Mix aus Gewerbe und Wohnen.

    Die Ladeneinheit, welche im Erdgeschoss – ideal für den Einzelhandel – über großzügige Schaufenster einen maximalen Mehrwert für Laufkundschaft bietet, wurde im Zuge des Umbaus im Jahr 1969 optimiert. So entstand im 1.OG ein weiterer Verkaufsraum mit Büro, einen ladeninterner Treppenaufgang sowie eine Feuertreppe im Zuge des Brandschutzes. Die reine Verkaufsfläche (exkl. Büro, Kunden WC, Lagerraum) beläuft sich auf beiden Etagen auf insgesamt ca. 205 m².
    Die Wohnung im 2.OG befindet sich ebenso im Hauptgebäude. Über einen separaten Eingang im Erdgeschoss gelangt man in die ca. 124 m² große 3,5 Zimmer Wohnung, welche sich in einem teilsanierten Zustand befindet. Großzügige Räume, überhohe Decken, Echtholz-Parkett, eine Einbauküche im Retro-Chic sowie ein Bad-en Suite am Schlafzimmer bieten ein komfortables Wohnen. Die äußerst private Dachterrasse mit Nord-Westausrichtung in Richtung Innenhof ist dabei ein zusätzliches Highlight. Die Wohnung ist derzeit leerstehend und kann neuvermietet oder selbst bezogen werden.
    Vollständig wird das Hauptgebäude mit dem teilweise ausgebauten Dachboden mit ca. 136 m², welcher derweilen als Lagerraum dient und nach Umbau ebenso als weitere Wohnung genutzt werden kann.

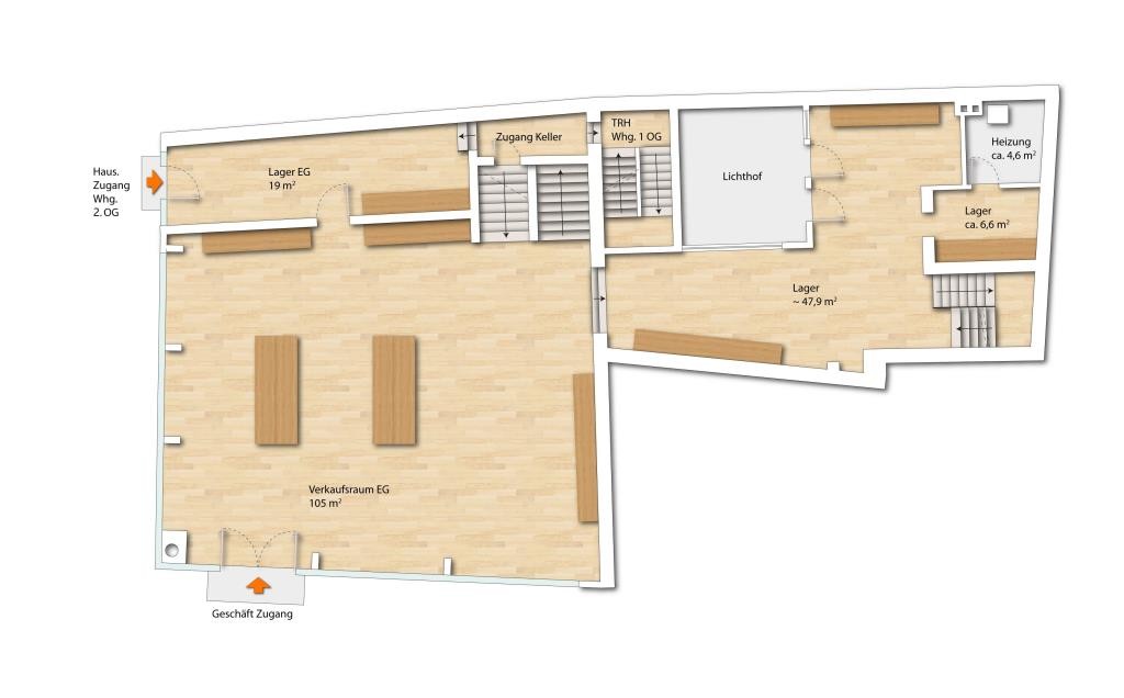
    Das zugehörige Rückgebäude des Hauses wurde samt Teilunterkellerung im Jahr 1950/51 erbaut. Die hier vorhandene Fläche von ca. 173 m² grenzt direkt an die Ladeneinheit im EG und 1.OG an und bietet Platz für zwei Lager, den Heizraum sowie eine Toilette.

    Die energetische Versorgung des Hauses erfolgt derweil über eine Ölheizung (Tankvolumen 8.000 l), welche Mitte der 90er Jahre verbaut wurde. Die Warmwasseraufbereitung erfolgt über einen elektrisch betriebenen Boiler.

    Sowohl die Vermietung der Wohn- als auch der Gewerbeeinheit ist im aktuellen Zustand möglich. Kurzfristig betrachtet ist jedoch eine Sanierung des Gebäudes, vor allem in Hinsicht folgender Punkte, unumgänglich: Dachsanierung, Heizungserneuerung, Fensteraustausch.

    Das Haus wird zum aktuellen Zeitpunkt selbst verwaltet, es gibt keine zuständige Hausverwaltung und es wurden keine Rücklagen gebildet, welche mitveräußert werden.

    Dingolfing, eine herrlich an der Isar gelegene Kreisstadt im südlichen Bayern, liegt im niederbayerischen Hügelland, etwa 25 Kilometer nordwestlich der Stadt Landshut, rund 40 Kilometer östlich von Regensburg und 100 km nordöstlich von der Landeshauptstadt München. Besonders bekannt ist Dingolfing als Standort eines großen BMW-Werks, das die Region wirtschaftlich maßgebend prägt und als ein bedeutender Arbeitgeber fungiert.

    Dingolfing ist dank seiner erfolgreichen Industrie und der zentralen Lage bestens an das Verkehrsnetz angebunden und wird durch die Bundesstraße B20 sowie die Autobahn A92 (München–Deggendorf) erschlossen. Der Bahnhof Dingolfing ist ein wichtiger Knotenpunkt im regionalen Schienenverkehr, wodurch auch eine gute Verbindung nach Landshut und überregional besteht.

    Die Initiativen der Stadt, den Alltagskomfort durch diverse Einkaufsgelegenheiten, Freizeitangebote, Schulen und Arbeitgeber vor Ort möglichst hoch zu gestalten, wurden in der Vergangenheit mit bester Mühe verfolgt. So findet sich vor Ort alles wieder: Verschiedene Supermärkte und ein Wochenmarkt mit einer vielfältigen Lebensmittelauswahl, das Erlebnisbad Caprima als eines der beliebtesten Freizeitorte im Stadtgebiet für Jung und Alt und weltweit agierende Konzerne wie BMW, Mann& Hummel sowie Develey Feinkost als ausgezeichnete Arbeitsstätten. Selbsterklärend bietet Dingolfing auch den jüngsten der Bewohner vom Kindergarten bis hin zu allen fortführenden Schulen einen ortsansäßigen Komfort.

    Die Architektur in der Innenstadt ist geprägt von historischen Gebäuden, die den Charakter der Stadt unterstreichen. Viele dieser Bauwerke stammen aus verschiedenen Epochen und erzählen die Geschichte Dingolfings. Besonders hervorzuheben ist der Marienplatz, der das Herz der Altstadt bildet und von zahlreichen Geschäften, Boutiquen, Cafés und Restaurants umgeben ist. Die landschaftliche Umgebung ist dank großflächiger Waldgebiete und den Isarauen eine echte Erholungszone in direkter Nähe.

    Mit dem Laden der Karte akzeptieren Sie die Datenschutzerklärung von Google.

    Mehr erfahren